电视墙上插座该如何布置?
的有关信息介绍如下:电视墙插座布置
1.首先确定电视是挂在墙上,还是放在电视柜上。从而确定电视附近的插座布置。通常比较多的布置方式是,电视附近的插座,如果是挂在墙上的,插座布置在电视柜的紧上方,便于插拔。一般设置九孔插座即可,如有音响功放系统,则按需增加。同时需要布置网线插座一个。有线电视插座一个(现在年轻人都不用)。

2.如果是壁挂电视,可以安装50管,通过50管将电源线网线等暗藏在墙体内,比较美观,避免看到一堆线。也可以将直接插座布置在上方,让电视挡上,也比较美观,一般设置在电视的两侧。


如果所需要的插座比较多,一般是左弱电,右强电。强电是指220V交流电源插座,弱电是指网线,有线电视,电话,音响插座。

但是目前做50管的比较少,壁挂电视插座更多的是直接设置在电视挂置区,让电视挡上。
3.那也有不少人选择将电视插座设置在电视柜后面,这种看上去比较美观,在实际使用中,插拔不放便,同时插头线容易在长时间折弯情况下老化,受损。同时电视柜与墙面之间的缝隙很容易积灰,掉东西进去。

4.也有人将电视插座设置在电视挂置区的正下方,紧挨电视,外露的线比较少,也比较美观。

5.对于插座的选择,我们一般选择多个五孔插座,一个九孔插座,搭配弱电插座。也可以选择集成插座。

对于布线来说,一般强电线路和弱电线路要间隔至少30厘米,避免弱电的信号受到强电的干扰。

6.一般我们的电视墙上,还会在电视柜的两端,或者电视墙的两端预留五孔插座,备用,作为临时或者后期增加设备的电源。同时空调,后期可能得智能设备考虑进去。

如果是投影仪,也需要考虑,尤其是电动投影布,和挂置在吊顶上的投影仪,需要在顶面留插座。

欢迎大家留言讨论,点赞。
给大家详细解释一下,背景墙主要处理两个问题:
1.电视线,网线,各种线路怎么隐藏。
2.路由器,机顶盒,怎样隐藏在电视柜里。
先详细解释一下第一个问题:各种线路怎么隐藏的问题。
A.走个50管,让电视线或者网线通过50管,暗藏到墙里面,连接到电视。

一般情况下,机顶盒和路由器,会放在电视柜的地方,网线或者电视线需要先通过机顶盒或者路由器,然后才能连接到电视。

所以这就会出现一个情况,从路由器或者机顶盒,向电视连接的地方,就会有明线,而暗藏50管就完美的解决啦这个问题。如下图:

2.第二个问题:路由器,机顶盒等放在电视柜什么位置?
分两种情况:
如果电视柜,中间是空的,就把路由器和机顶盒放在,中间空的地方。


如果电视柜中间是实心的,可以把插座位置,放在电视柜后面,然后把电视柜背板挖几个孔,这样电视柜就可以贴着墙啦,
然后再把机顶盒放在电视柜上,电线连接下,这样既看不到连接机顶盒的电源线,又不影响机顶盒的信号。

以上就是我们经常做的,处理电视柜和电线网线关系的这个方案,分享给大家,希望对大家有所帮助。

最近我总结了一套详细的施工工艺和验收标准ppt,在里面大家可以很清楚的看到里面各个工序的详细施工工艺和验收标准。
解决了大家在装修过程当中,不懂工艺,不知道怎么验收的痛点,如果大家有意向,可以在下面留言或者私信我。




以上是ppt的部分内容,全部下来有120多页,非常通俗,简单明了。
大家好,我是有着十年设计经验的设计师,如果大家觉得我发布的文章对大家有所帮助,可以关注我的头条号,我会定期发布有用的家居文章。
您好,我是睿宝,从事室内设计15年,爱设计爱生活,每日解决家居、装修难题,关注行知,服务万家,很高兴回答您的问题!
电视墙上插座该如何布置?
目前常见比较实用的几种电视墙插座方案分享:
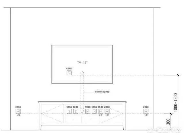
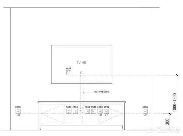
1、离地1.1米设计为网线,电源线,如果电视挂墙上,刚好在电视背后,网线离地0.7米,电源插座,电源与网线刚好在电视柜以上,这样比较方便,电视可以挂墙上,也可以放到电视柜上,两种方案皆可。电视都可以遮挡电源插座
强、弱电在一起时,强电可以用铝箔纸包住,避免网络信号干扰。

2、电视处预埋50PVC管,这样电线可以从管中穿过,墙面看不到电线,达到美观的效果。电视墙的强电与弱电(网线、电话线和闭路线)分开布线,这样可避免强电干扰弱电信号。插座暗盒都用暗盒盖盖好,避免在施工中有杂物掉入以及防止触电等。

3、电视处预埋50PVC管,下面考虑两根网线、4个插座,满足日常生活需求。

4、电路改造注意事项
(1)、开关和插座的安装位置和数量,是布线时应慎重考虑的,插座一定要多考虑。

(2)、一般情况下,零线为蓝色,火线为红色,地线为黄绿双色线。

(3)、灯具用2.5平方毫米的线,开关、插座、接地线用2.5平方毫米。安装空调、热水器等大功率电器的线路则应单独走一路4平方毫米,插座使用16A三孔插座。
(4)、同一房间插座的高度需要一致。

(5)、在铺设电线的过程中,要遵循“火线进开关 ,零线进灯头”的原则; 插座接线要做到“左零N右火L,接地PE在上”或是“上火下零”。

为防止儿童触电、用手指触摸或金属物插捅电源孔眼,一定要选用带有保险挡片的安全插座。需经常开关电源的电器,考虑使用带开关的插座。

(6)、网络线、电话线、电视线不能同电线穿在同一管路内,强弱电交叉时,一定要用铝箔纸包住隔离,防止信号干扰。

(7)、新做暗盒线管和线盒连接处要用锁扣进行连接。

通过案例分享,希望可以帮助背景墙插座不知如何预留的朋友,后续我会持续更新,欢迎大家在评论区留言交流。(个别图片来自网络,如有侵权,立即删除)
回答不易,如果觉得本文有帮助的话,请劳烦为小编点个赞,以示鼓励,如果觉得意见不足,欢迎大家发表评论,感谢阅读,欢迎收藏!

爱生活,爱设计,平时愿意聊聊家装设计的事,和家居生活方面,喜欢可以关注,欢迎点赞评论!电视墙作为客厅的焦点美观大方十分重要,故布置插座也要十分考究,插座数量的多少十分影响用户体验,插座位置的设定,能帮助遮掩部分杂乱的线路保证美观。那下面就让我来谈谈电视墙插座如何布置的一些心得体会!

首先在布置电视背景墙时就需要考虑好观影用的家电的基本配置,电视尺寸选多大?是打算挂墙上的?还是放在电视柜上?放电视柜上,那么电视柜高度是多少?这些都需要提前考虑,在做水电管线的时候就考虑其中。
电视挂墙:那么就可以选择在做水电的时候提前预埋一根管线在墙体内,让电视挂在墙上的时候,把电源线穿进管内,避免电源线乱飞,影响电视墙美观的尴尬。↓↓↓

置于电视柜上:那么就需要考虑电视柜的高度,把电源线布置在电视柜之后,用电视柜或电视柜上的物品(音响、摆设)作一定的遮挡,减少凌乱电线的暴露,增强美观。
上述基本方位布置好了之后可以开始考虑布置电源插座的数量,强弱电源各有多少个。
强电一般就是指正常的三孔、五孔的插座,弱电一般指电视线、网线、电话线等。
现在的情况个人还是建议在电视墙上最好预留网线插座,一来正常情况下电视墙所处的客厅在屋内较为中心位置,安置网线后可放置WiFi覆盖屋内大面积空间,二来现在的各种电视盒子和智能家电大行其道,预留网线让自己多一个选择。
到电源五孔插座,一个电视插座、一个机顶盒、一个wifi插座、音响插座,即使不是全装上,留三个插座不过份吧!
所以个人建议最低配置,电视线口*1
网线口*1
五孔插座*3
网上有那种电视线口和网线口在一个面板里面的,可以节省一个面板的位置。也可以选择用个拖线板放在电视柜隐蔽处来增加插线位置。
但我个人还是推荐个插线神奇,不仅颜值高,还能随时增加插座数量,保证实用性的同时还能继续让电视墙提升颜值↓↓↓


插头可以随意插拔,用过之后确实觉得十分便利。毕竟现在诱惑太多,一不小心买台ps4,一个忍不住就一台Xbox,一时接个switch充电联机(天啊,这万恶的资本主义)。加上客厅的空气净化器,加湿机等等等等,然后这个时候你在看看自家那个受万人唾弃的五孔插座。。。

你才会觉得我推荐的这款插座神器多么良心。真的是用过觉得太实用了。
上述就是我对电视背景墙上插座布置的一些心得体会,有问题的朋友可以私聊我向我提问!
设计师小墨,专注分享装修经验,有任何装修疑问都可以私信我哦!家里马上就要排插座位置了,但是关于电视背景墙的插座位置,我却有点纠结了,究竟是把插座做在电视柜上面还是下面更好呢?如果放在电视柜下面的话,电视柜不就不能紧贴着墙了?可如果装在上面,一些线路露在外面也不太美观呀,头大!

后来我实在是拿不定注意了,就和我家正在一线装修的电工沟通了下,庆幸我家没选错!电工给我的建议是,还是要看电视的安装方式,然后根据具体情况来决定插座究竟是装在上面好还是下面好。

现在大家都比较喜欢把电视直接吊在墙面上,这种情况下,插座在电视柜上面的话,刚好电视可以挡住,从正面看,也只有电视和电视柜,不会影响美观度,而且符合大家的使用习惯,用起来也比较方便,便于插拔。

至于插座做在电视柜下面,也是分情况的,有些业主会直接将插座安装在电视柜柜体上,这样就可以紧贴着墙了,平视时也看不到,美观度很高,插拔也会比较方便。但就是存在一个缺点,日后如果插座要调整位置的话,更换就会比较麻烦了,可能会损害柜体,有点不太划算。但如果是将插座藏在电视柜背后的话,就不是很建议了,不但很容易积灰,而且插拔也很麻烦。

电视柜上的插座要是装错了位置,更换麻烦还积灰,让人很是火大,气得想拆掉。不过电工根据我家的情况,他的建议是最好还是装在电视柜上面比较好,如果我实在嫌一些杂七杂八的数据线难看的话,可以找师傅在电视背景墙上左边做一个竖方向的线管,专门用来走电源线、数据线、音频线等等,最好粗点,这样会更实用。

现在家用电器越来越多,如果插座安置的不够或者是不合理,在日常的生活中就会有很多的麻烦。
既然讲电视墙,我们就连餐厅和客厅的一起讲了,希望能够给家一点帮助。
我们能够看到,电视墙处最少要设计1个双USB五孔插座,2个五孔插座,1个电视有线信号和1个网孔。
当然如果是游戏爱好者,那就需要再额外准备一个五孔插座为好。


下面两张图是插座的位置高度的设计


按照站长说的这些布置家里客厅的插座,就绝对不会出现插座不够或者设计不合理的情况啦~
谢谢各位的观看~
记得点赞加关注哦~
要做到电视墙清爽整洁,插座的预留起着至关重要的作用。
插座数量:电视电源,有线电视,网线,音响电源,路由器,预留插座等,还有根据主人的生活习惯适当增加。
插座分布:插座分布分为三个区域。一,以电视机为中心的强弱电源,一般来说都居背景墙中央一字排开。如果电视为壁挂式,要在壁挂位置后预留一个单独的电源,供电视机使用,不然线会露出一截,凌乱影响美观。二,多数户型的客厅空调会放在电视背景墙的一侧,那么,立式或挂式空调分别预留电位。三,在另一侧预留2--3个插座,比如,回南天神器除湿机,家有baby需要的空气净化器,不冷不热天气的电风扇等。
生活起来诸事繁琐,预留充足,就不用担心带“尾巴”的线板来回绊脚啦。
谢邀!出于美观大方考虑,预埋管,把所有的线都收录,然后留两个插座面板,一个网线接口的。ok
最现实的就是应该先确定电视柜的高度,然后尽可能多的设置插座,避免遮挡
电视墙作为客厅的主要元素,在客厅中扮演着重要角色。而插座外观小巧,常被忽略,以至于插座的数量和位置影响到居住者的生活质量。如何布置电视墙的插座显得尤为重要,插座的布局、数量和位置都有一定的考究。

布局
设计之初,需要对空间进行合理的规划与布局,否则将陷入紧迫的境地,插座虽小,却也需要正确布局。依据电视墙的所在位置,将插座纳入考虑范围内。电视若为悬挂式,插座可位于电视后方或下方,搭配木色与白色结合的定制柜,呈现出温润柔和的质感。

若电视放置于柜体上方,则插座通常位于电视墙上。檀棕色的电视柜体,在灰色墙面的衬托下更显高级,木色地板带来自然的画面,为空间注入一丝暖意,中和了灰色调的高冷。

数量
总有埋怨插座、开关的位置和数量影响居住质量,其根本原因是装修前没有事先了解关于开关插座的知识。电视墙是家居的主要组成部分,插座关乎电视能否正常运行。在插座的数量上,需结合空间中的家具数量而定,包括电视、机顶盒、空调、网络、电话等,而不是只考虑电视的插座。

洁白的大理石墙面,与定制的电视框架,仿若完美十足的搭配,清新夺目的搭配,令人焕然一新。
位置
房子是一个立体空间,承载着人们的日常活动。空间中的每一个角落都有其独特的意义,客厅是会客的场所,卧室是供居住者休憩的空间,而厨房是解决人的温饱地带,不同的空间包含着独特的意义。插座的位置需要结合人体的生活习惯而定。一般插座的高度应不小于地面300mm,插座与插座之间适当分隔开,以30—50mm为宜。

着重突出的四方造型,更能显现出家居的特点,插座位于下方内嵌式柜体内,搭配暖光的灯带,目光所及之处,是温润如玉的视觉体验。
注意事项
插座属于水电工程,关乎居住者的用电安全。选择符合国家规范要求的电线,插座的回路采用漏电保护开关,接地线需确保每个插座都存在。日常使用插座时,不可沾水,放置触电。

电视墙堪称空间的主体,其插座的设计需要结合空间布局和家居摆放进行抉择,若是随意添置,将会陷入无休止的烦恼中。不必局限与传统的插座布置,合理规划和利用空间的每个角落,从而达到客厅的有效运行,为电视墙面创造出无限的可能。



